Apartamento T2 Mobilado - Amadora

1 350€ / Mês

  • 3
  • 2
  • 1
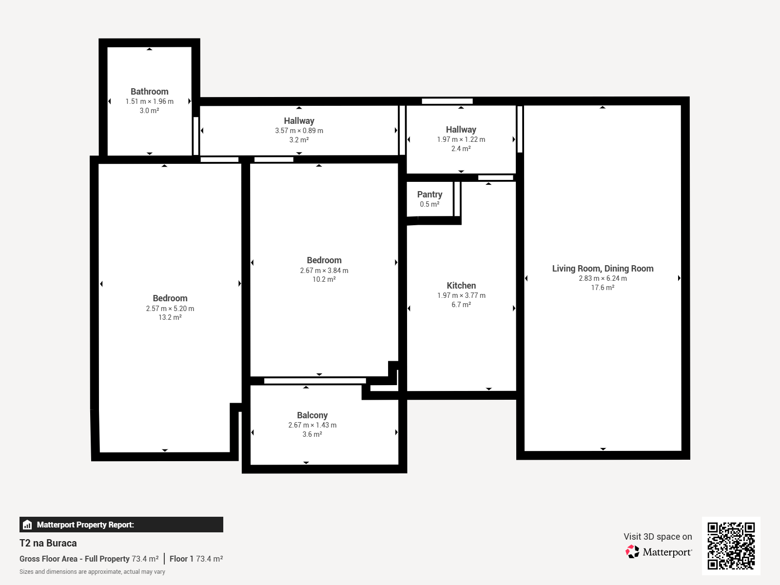
  • Útil: 62m2
  • Bruta: 70m2
  • C.E.: C
  • Ano: 1983
  • Orientação Solar: Poente
  • Ref: 66181-MCCP62782

Localização

Lisboa, Amadora, Águas Livres, Buraca

VR Tour

Descrição

Descubra o conforto de viver neste luminoso T2, inserido numa zona calma e tranquila da Amadora.
Com luz natural em todas as divisões, este apartamento oferece uma atmosfera acolhedora e perfeita para quem procura bem-estar no dia a dia.

Totalmente mobilado e pronto a habitar, conta com:
✔ Cozinha equipada
✔ Quartos mobilados, ideais para descanso e privacidade

A localização combina sossego com praticidade, estando próxima de transportes, comércio e serviços.

Se procura um lar onde possa entrar apenas com as suas malas, este apartamento é a escolha certa! 

Agende já a sua visita e venha conhecer o seu próximo lar!

Atributos

  • Mobilado
  • Cozinha Equipada
  • Gás Canalizado
  • Vistas Exteriores
  • Local sossegado

Divisões

Plantas

Nome do piso: 2

Divisão Área Nota
Quarto
Quarto
Sala
WC
Cozinha